

Dom szkieletowy 116 m²
ARCHON dom w Kosaćcach
5
2
116,49m²
Skontaktuj się z nami
ARCHON – dom szkieletowy w Kosaćcach
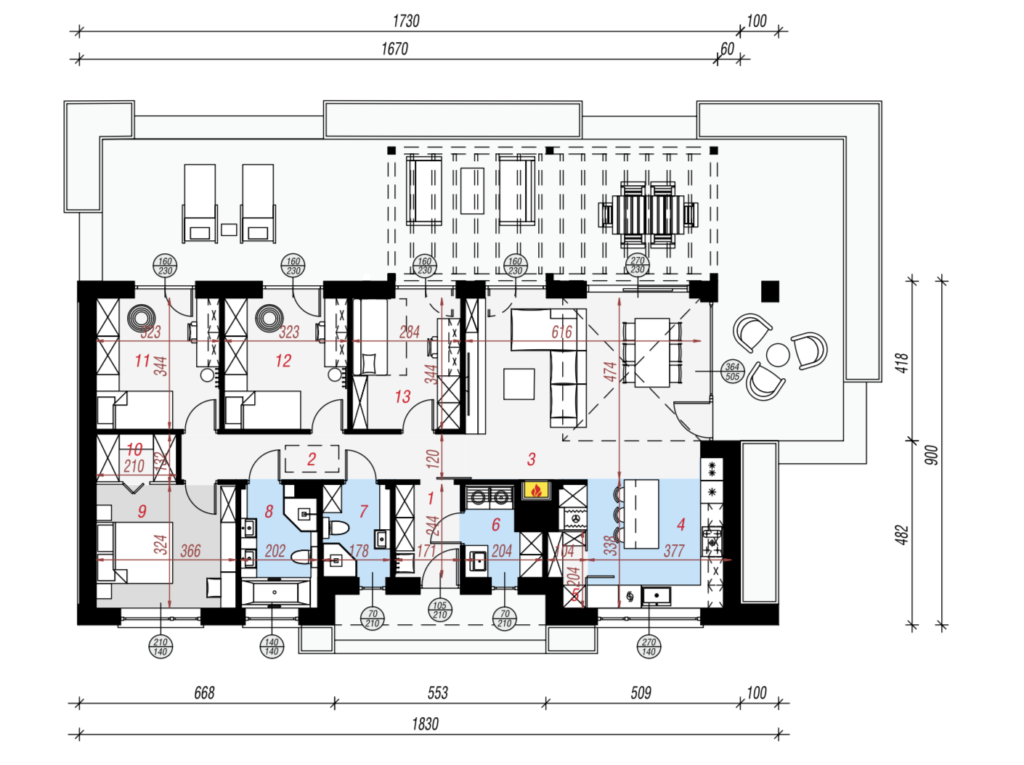
Projekt Dom w Kosaćcach to elegancki i przestronny dom szkieletowy, który idealnie odpowiada potrzebom nowoczesnej rodziny. Prosta bryła z dwuspadowym dachem bez okapów oraz charakterystyczny podcień wejściowy nadają mu wyjątkowego charakteru i sprawiają, że przyciąga wzrok od pierwszego spojrzenia.
Wnętrze domu zachwyca otwartą, dwukondygnacyjną strefą dzienną z efektownym przeszkleniem, które wpuszcza do środka dużo naturalnego światła. Centralnym punktem jest kuchnia z dużą wyspą i spiżarnią, obok której znajduje się przytulny salon z kominkiem – idealne miejsce na wspólne chwile w gronie rodziny.
Projekt przewiduje aż pięć pokoi, dwie łazienki oraz praktyczną pralnię w kotłowni, co gwarantuje wygodę dla większej rodziny. Duży taras z pergolą zachęca do relaksu na świeżym powietrzu i tworzy doskonałe przedłużenie strefy dziennej.
Ten dom modułowy to doskonały wybór dla osób, które cenią nowoczesność, przestrzeń i komfort. Połączenie przemyślanej architektury, funkcjonalnych rozwiązań i naturalnych materiałów sprawia, że Dom w Kosaćcach stanowi idealne miejsce do życia dla całej rodziny.
Zobacz plan domu szkieletowego 116m²
domy MODUŁOWY 116 m² | Dom szkieletowy 116 m² | Dom bez pozwolenia 116 m²
Wybierz zakres, który Tobie odpowiada
- ✓Adaptacja projektu
- ✓Gotowe prefabrykowane ściany zewnętrzne wykończone tynkiem cienkowarstwowym, wewnątrz są przygotowane do samodzielnego montażu instalacji elektrycznych
- ✓Konstrukcja ścian wewnętrznych przygotowana do pokrycia płytami gk
- ✓Konstrukcja stropu z pasa dolnego wiązara do samodzielnego pokrycia płytami gk
- ✓Kompletna konstrukcja dachu, w tym pokrycie oraz orynnowanie
- ✓Transport i montaż konstrukcji budynku na działce.
- ✓Wysokiej jakości stolarka okienna i drzwiowa zewnętrzna
- ✓Kompletny montaż konstrukcji ścian zewnętrznych i wewnętrznych
- ✓Dostawa wszystkich elementów prefabrykowanych na plac budowy
- ✓Montaż konstrukcji budynku na działce
- ✓Zatrudnienie kierownika budowy
- ✓Płyta fundamentowa
- ✓Wymiana gruntu pod płytę fundamentową (jeśli konieczna)
- ✓Wykonanie instalacji elektrycznej, wodno-kanalizacyjnej, wentylacyjnej oraz grzewczej
Pokaż więcej
- ✓Montaż płyt na ścianach wewnętrznych wraz z ociepleniem wełną mineralną
- ✓Wykonanie wylewek wraz z ogrzewaniem podłogowym
- ✓Ocieplenie stropu
- ✓Gipsowanie i szpachlowanie ścian oraz sufitów
- ✓Montaż białej armatury
- ✓Wykonanie przyłączy: wodociągowego, kanalizacyjnego oraz energetycznego
- ✓Sporządzenie świadectwa energetycznego
- ✓Adaptacja projektu
- ✓Gotowe prefabrykowane ściany zewnętrzne wykończone tynkiem cienkowarstwowym, z peszlami pod instalację elektryczną,
- ✓Konstrukcja ścian wewnętrznych wykończona płytami z twardego gipsu KNAUF Diamant z izolacją akustyczną z wełny mineralnej – trwała, odporna powierzchnia, na której powiesisz telewizor lub szafki
- ✓Konstrukcja stropu – pas dolny wiązara wykończony płytą GK na ruszcie drewnianym, ocieplony 30 cm wełny mineralnej
- ✓Konstrukcja dachu – pokrycie z blachy wraz z orynnowaniem
- ✓Kompleksowe instalacje: elelektryczna, wodno-kanalizacyjna oraz ogrzewanie podłogowe elektryczne
- ✓Wylewka – trwałe, równe podłoże pod wykończenie
- ✓Wysokiej jakości stolarka okienna i drzwiowa zewnętrzna
- ✓Zatrudnienie kierownika budowy
- ✓Płyta fundamentowa
- ✓Wymiana gruntu pod płytę fundamentową
- ✓Gipsowanie i szpachlowanie ścian oraz sufitów
- ✓Montaż białej armatury
- ✓Wykonanie przyłączy: wodociągowego, kanalizacyjnego oraz energetycznego
- ✓Sporządzenie świadectwa energetycznego
Dlaczego heyTimber to najlepszy wybór?
domy MODUŁOWY 116 m² | Dom szkieletowy 116 m² | Dom bez pozwolenia 116 m²
Gwarancja na dom – 20 lat
Oferujemy 20-letnią gwarancję konstrukcyjną. Twój dom pozostanie solidny i bezpieczny przez lata.
Gwarancja ceny
Masz pewność stałej ceny – bez ukrytych kosztów. Transparentne zasady od początku do końca inwestycji.
Możliwe zmiany w projekcie
Wprowadzamy modyfikacje, by dom idealnie pasował do Ciebie i Twojej rodziny.
Pomagamy uzyskać pozwolenie na budowę
Zajmujemy się formalnościami za Ciebie. Przygotowujemy dokumenty i wspieramy w całym procesie.
domy MODUŁOWY 116 m² | Dom szkieletowy 116 m² | Dom bez pozwolenia 116 m²
Co mówio o nas klienci?
Ocena doskonała
Na podstawie 31 opiniiTrustindex sprawdza, czy pierwotnym źródłem recenzji jest Google. Miałem okazję prowadzić prace instalacyjne i wykończeniowe w domu od Heytimber, dostarczają solidną jakość, polecam Chrystian PaluszekTrustindex sprawdza, czy pierwotnym źródłem recenzji jest Google. Bardzo rzetelny wykonawca . Ceny rowniez bardzo atrakcyjne, jak na tak wysoka jakość wykonania. Napewno wrócę z następna inwestycja. Paweł ŻurawskiTrustindex sprawdza, czy pierwotnym źródłem recenzji jest Google. HeyTimber to budowa nowoczesnych i przyjaznych mieszkańcom domów w oparciu o przede wszystkim nieszkodliwe naturalne materiały. Fachowcy w tej firmie dbają o jakość i bezpieczeństwo konstrukcji stawianych domów. Wystarczy spojrzeć, jak ich domy zabezpieczane są przed działaniem wody i wilgoci, np.: w rejonie podwalin, oczepów i penetracji wody opadowej czy nawet rozbryzgowej. Przykładają miarę do uzyskania wysokiej szczelności powietrznej domów. Wszystko w oparciu o materiały wysokiej jakości, spełniające najsurowsze niemieckie normy, sprawdzone w wielu trudnych budowach, bez kompromisów dla trwałości domów i zdrowia mieszkających w nich rodzin. Tu nie ma paproków. Polecam! Robert ZaorskiTrustindex sprawdza, czy pierwotnym źródłem recenzji jest Google. Przede wszystkim świetny kontakt, rzetelność i doradztwo na każdym etapie inwestycji. Jednym słowem, solidna firma! Polecam. Paweł MadejTrustindex sprawdza, czy pierwotnym źródłem recenzji jest Google. Polecam firmę HeyTimber, Profesjonalne podejście, ogromna wiedza i doświadczenie a przede wszystkim terminowość to cechy które charakteryzują HeyTimber. Radosław PopekTrustindex sprawdza, czy pierwotnym źródłem recenzji jest Google. Pełen profesjonalizm, wszystko sprawnie i szybko. Polecam! Bartłomiej ZygmańskiTrustindex sprawdza, czy pierwotnym źródłem recenzji jest Google. Solidna firma z bardzo przejrzystym cennikiem, realizująca inwestycje bez ukrytych kosztów Oskar FollendorfTrustindex sprawdza, czy pierwotnym źródłem recenzji jest Google. Profesjonalizm pod każdym względem. Polecam serdecznie! AdamTrustindex sprawdza, czy pierwotnym źródłem recenzji jest Google. Firma zdecydowanie godna polecenia. Pełen profesjonalizm, ogromne doświadczenie i świetne podejście do klienta. Karolina T.
domy MODUŁOWY 116 m² | Dom szkieletowy 116 m² | Dom bez pozwolenia 116 m²
Dom w 3 miesiące? To możliwe!
Sprawdź nasz proces realizacji domów.
1.
Posiadasz warunki zabudowy działki lub miejscowy plan zagospodarowania terenu? Pokaż nam go- zweryfikujemy, czy ten dom będzie pasować do Twojej działki!
2.
Zdecydowany? Jeżeli budujesz dom przy wsparciu finansowania bankowego, warto skontaktować się z doradcą kredytowym w celu uzyskania promesy. Podpisz z nami umowę zabezpieczająca cenę Twojego domu. My przygotujemy projekt domu zgodny z Twoimi warunkami zabudowy lub MPZP (kąt spadku dachu itp.) i wystąpimy z wnioskiem o pozwolenie na budowę.
3.
Gratuluję- otrzymałeś pozwolenie na budowę. Teraz możemy zaplanować konkretną datę produkcji Twojego domu.
4.
Wylewamy płytę fundamentową lub Ty wykonujesz ją sam. Dajemy Ci jasny wybór!
5.
Rozpoczynamy prefabrykację domu.
6.
Wykańczamy Twój dom do umówionego stopnia i dajemy Ci klucze. Jeżeli wybrałeś wariant deweloperski- możesz śmiało jechać po panele podłogowe i resztę wyposażenia!
Zbuduj dom w umówionej cenie, bez nieprzewidywalnych kosztów.
Czytaj więcej o domach szkieletowych...

Zabezpieczenie fundamentów – jak prawidłowo wykonać izolację fundamentów domu szkieletowego
Zabezpieczenie fundamentów to kluczowy etap budowy domu szkieletowego i prefabrykowanego. Sprawdź jakie materiały wybrać, jak wykonać izolację przeciwwilgociową oraz jak uniknąć kosztownych błędów.

Materiały wygłuszające na ściany – jak wyciszyć dom szkieletowy?
Czy dom z drewna może być cichy? Obalamy mity! Dowiedz się, jaka jest najlepsza izolacja akustyczna ścian i jak skuteczne wygłuszenie ścian wpływa na komfort życia w domu jednorodzinnym.

Jak wybudować dom i nie zwariować? Poradnik: Budowa domu krok po kroku
Budowa domu jednorodzinnego to proces, który wielu inwestorom spędza sen z powiek. W tym poradniku przeprowadzimy Cię przez wszystkie etapy budowy domu – od formalności, przez fundamenty, aż po stan pod klucz. Dowiedz się, jak wybudować dom sprawnie, bez błędów i w przewidywalnym budżecie.

Ile kosztuje dom 70 m ? Koszt budowy domu szkieletowego w 2026 r.
Planujesz budowę? Sprawdź aktualny koszt budowy domu 70m². Analizujemy ceny za gotowe domy do 70m², domy na zgłoszenie oraz porównujemy koszt domu murowanego 70m² z technologią szkieletową Hey Timber.

Jak wybudować dom szkieletowy? Budowa domu szkieletowego krok po kroku
Budowa domu szkieletowego to jeden z najszybszych i najbardziej przewidywalnych sposobów realizacji własnego domu jednorodzinnego. Technologia szkieletowa pozwala skrócić czas budowy, precyzyjnie kontrolować koszty i uzyskać bardzo dobre parametry energetyczne budynku. W tym artykule pokazujemy, jak wybudować dom szkieletowy od podstaw – od przygotowania projektu i fundamentów, przez konstrukcję ścian, aż po zamknięcie bryły i kluczowe etapy technologiczne, na które warto zwrócić uwagę jako inwestor.

Producent domów drewnianych całorocznych – jak wybrać firmę i sprawdzić jakość?
Szukasz sprawdzonego producenta domów drewnianych całorocznych i chcesz mieć pewność, że wycena jest uczciwa, a wykonanie solidne? W tym poradniku pokazujemy, jak porównywać firmy budujące domy z drewna, na co zwracać uwagę w technologii (konstrukcja, izolacje, szczelność), jakie dokumenty i potwierdzenia jakości mają realne znaczenie oraz jak czytać oferty, żeby uniknąć dopłat „po drodze”. Na końcu znajdziesz też praktyczne wskazówki, ile może kosztować budowa domu drewnianego przez profesjonalną firmę i jakie modele domów są dziś najczęściej wybierane.

Najładniejsze elewacje domów – inspiracje, zdjęcia i pomysły 2026
Jak wygląda dziś najładniejsza elewacja domu? W 2026 roku modne są naturalne materiały, proste linie i kontrastowe zestawienia kolorów. W tym wpisie znajdziesz zdjęcia inspiracji, projekty elewacji i praktyczne wskazówki, z jakich materiałów wybrać nowoczesną i trwałą elewację swojego domu.

Konstrukcja ściany szkieletowej – przekrój ściany szkieletowej, warstwy i grubości
Ściana szkieletowa to kluczowy element w domach drewnianych całorocznych. Z tego wpisu dowiesz się, jak wygląda jej przekrój, z jakich warstw się składa i dlaczego konstrukcje szkieletowe zyskują taką popularność w budowie domów modułowych.

Domy szkieletowe – czy warto? Opinie i zalety.
Domy szkieletowe zyskują coraz większą popularność jako nowoczesna alternatywa dla tradycyjnych konstrukcji murowanych. Czy rzeczywiście warto zainwestować w dom drewniany całoroczny? Poznaj zalety, opinie klientów i wszystko, co warto wiedzieć, zanim podejmiesz decyzję o budowie domu w technologii szkieletowej.

Energooszczędny dom modułowy – inwestycja, która się opłaca
Dom modułowy z drewna to oszczędność czasu, pieniędzy i energii. Sprawdź, dlaczego technologia szkieletowa i ekologiczne materiały STEICO to idealne rozwiązanie dla osób szukających komfortowego, całorocznego domu z niskimi kosztami eksploatacji.

Domy modułowe cena i porównanie z domem murowanym
Zastanawiasz się, co wybrać – dom modułowy, szkieletowy czy tradycyjny murowany? Sprawdź, która technologia budowy wypada korzystniej pod względem ceny, czasu realizacji, energooszczędności i komfortu życia. W artykule porównujemy domy modułowe i szkieletowe z budownictwem murowanym – dowiedz się, która opcja może być lepsza dla Ciebie i Twojego budżetu.

Jak prawidłowo budować domy szkieletowe
Budowa domu szkieletowego to nie tylko szybki proces, ale także sztuka wyboru odpowiednich materiałów i technologii. Chcesz, aby Twój drewniany dom był trwały, energooszczędny i zdrowy? Kluczem jest otwartość dyfuzyjna – czyli możliwość „oddychania” ścian. W tym artykule pokazujemy, jakich błędów unikać (np. styropian i płyty OSB), a jakie rozwiązania wybrać, by cieszyć się komfortowym mikroklimatem przez długie lata. Sprawdź, jak budujemy w HeyTimber – profesjonalnie i z troską o każdy szczegół.

Dom z drewna na ile lat? Eksperci odpowiadają
To jedno z najczęstszych pytań, jakie zadają inwestorzy rozważający budowę w technologii szkieletowej. Wokół domów drewnianych narosło wiele mitów – czas je rozwiać. W tym artykule wyjaśniamy, od czego zależy trwałość domu drewnianego, jakie technologie stosuje się we współczesnym budownictwie oraz dlaczego coraz więcej osób w Polsce i na świecie wybiera domy prefabrykowane z drewna jako bezpieczne, energooszczędne i długowieczne rozwiązanie.